Продается двухкомнатная квартира
Александра Матросова 9а, район Свердловский
18.11.2025

























Стоимость
4 100 000 ₽
97 619 рублей за м2
97 619 рублей за м2
Количество комнат
2 комн
Общая площадь
42 м²
Этаж
5 из 5
Несуществующий объект, неправильная информация? - обязательно сообщите.
Дополнительная информация:
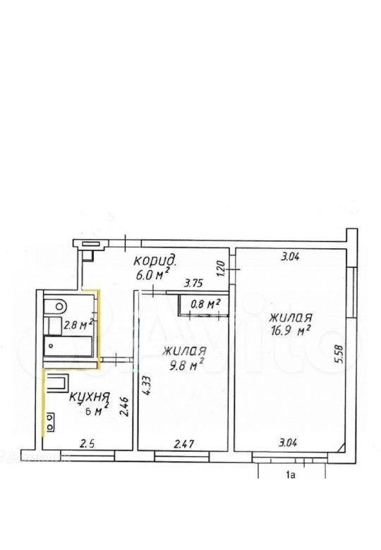
продаётся двухкомнатная квартира площадью 42.3 квадратных метров на пятом этаже пятиэтажного панельного дома, расположенного по адресу город красноярск, микрорайон предмостная площадь, ул. матросова, дом. 9а. дом размещен во второй линии от ул. матросова, плюс окна выходят во двор, таким образом шум от дороги не слышен. стоят пластиковые окна. жилая площадь составляет 26 квадратных метров, кухня 6 квадратных метров. хорошая планировка с раздельными комнатами, комнаты не проходные, изолированные. в большой комнате два окна, одно с выходом на застекленный балкон. санузел совмещённый, что является удобным решением для экономии пространства.квартира освобождена от мебели и прочего, что позволит новым владельцам сделать ремонт по своему вкусу. уютный подъезд , в прошлом году делался ремонт. подъезд ухоженный. соседи адекватные.взрослый собственник. обременений нет.для молодых семей с детьми особенно актуально наличие во дворе детской площадки, а также близость детских садов и средней школы, лицея. детская поликлиника в соседнем доме. ярыгинская набережная в шаговой доступности. остановка общественного транспорта матросова в нескольких метрах.отличная транспортная развязка практически в любую точку города. для повседневных покупок рядом расположены продуктовый магазин, супермаркеты и универсамы, где можно приобрести всё необходимое для комфортной жизни.
продаётся двухкомнатная квартира площадью 42.3 квадратных метров на пятом этаже пятиэтажного панельного дома, расположенного по адресу город красноярск, микрорайон предмостная площадь, ул. матросова, дом. 9а. дом размещен во второй линии от ул. матросова, плюс окна выходят во двор, таким образом шум от дороги не слышен. стоят пластиковые окна. жилая площадь составляет 26 квадратных метров, кухня 6 квадратных метров. хорошая планировка с раздельными комнатами, комнаты не проходные, изолированные. в большой комнате два окна, одно с выходом на застекленный балкон. санузел совмещённый, что является удобным решением для экономии пространства.квартира освобождена от мебели и прочего, что позволит новым владельцам сделать ремонт по своему вкусу. уютный подъезд , в прошлом году делался ремонт. подъезд ухоженный. соседи адекватные.взрослый собственник. обременений нет.для молодых семей с детьми особенно актуально наличие во дворе детской площадки, а также близость детских садов и средней школы, лицея. детская поликлиника в соседнем доме. ярыгинская набережная в шаговой доступности. остановка общественного транспорта матросова в нескольких метрах.отличная транспортная развязка практически в любую точку города. для повседневных покупок рядом расположены продуктовый магазин, супермаркеты и универсамы, где можно приобрести всё необходимое для комфортной жизни.
Похожие двухкомнатные квартиры в районе Свердловский





