Продается однокомнатная квартира
Академгородок 78, район Октябрьский
07.01.2026


























Стоимость
8 100 000 ₽
188 372 рублей за м2
188 372 рублей за м2
Количество комнат
1 комн
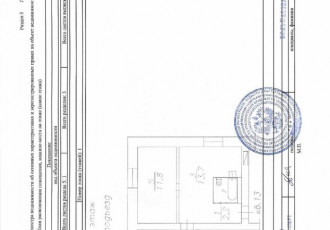
Общая площадь
43 м²
Этаж
8 из 15
Несуществующий объект, неправильная информация? - обязательно сообщите.
Дополнительная информация:
продается однокомнатная квартира на предпоследнем этаже в сданном доме жилого комплекса академгородок. объект предлагает уникальное преимущество панорамные виды на реку енисей и четвертый мост из всех основных комнат, что обеспечивает пространство и ощущение простора. высота потолков в 3 метра дополнительно усиливает это впечатление и открывает возможности для дизайнерских решений. планировка функциональна и допускает переустройство в полноценную евродвушку с изолированной спальной зоной. квартира находится в состоянии предчистовой отделки стены и полы выровнены, балкон остеклен, что позволяет новому владельцу сразу приступить к финишным работам по собственному вкусу. дом расположен в развитом районе с формирующейся современной инфраструктурой, обеспечивающей хорошую транспортную доступность. квартира принадлежит одному взрослому собственнику, вся сумма указывается в договоре куплипродажи без занижения. для серьезных покупателей возможен просмотр в удобное время по предварительной договоренности.дополнительно оплачивается комиссия с покупателя.комиссия на покупку данного типа недвижимости при стоимости объекта недвижимости до 8 000 000 рублей составляет 20 000 рублей 2 от стоимости объекта недвижимости, но не менее 50 000 рублей при работе со специалистом по недвижимости при стоимости объекта недвижимости от 8 000 000 рублей составляет 2 от стоимости объекта недвижимости при работе со специалистом по недвижимости при стоимости объекта недвижимости до 8 000 000 рублей составляет 30 000 рублей 2 от стоимости объекта недвижимости, но не менее 50 000 рублей при работе с экспертом по недвижимости при стоимости объекта недвижимости от 8 000 000 рублей составляет 10 000 рублей 2 от стоимости объекта недвижимости при работе с экспертом по недвижимостисделки с агентствами по недвижимости происходят на основании соглашения о совместной сделке.код пользователя 12986номер в базе 10223984
продается однокомнатная квартира на предпоследнем этаже в сданном доме жилого комплекса академгородок. объект предлагает уникальное преимущество панорамные виды на реку енисей и четвертый мост из всех основных комнат, что обеспечивает пространство и ощущение простора. высота потолков в 3 метра дополнительно усиливает это впечатление и открывает возможности для дизайнерских решений. планировка функциональна и допускает переустройство в полноценную евродвушку с изолированной спальной зоной. квартира находится в состоянии предчистовой отделки стены и полы выровнены, балкон остеклен, что позволяет новому владельцу сразу приступить к финишным работам по собственному вкусу. дом расположен в развитом районе с формирующейся современной инфраструктурой, обеспечивающей хорошую транспортную доступность. квартира принадлежит одному взрослому собственнику, вся сумма указывается в договоре куплипродажи без занижения. для серьезных покупателей возможен просмотр в удобное время по предварительной договоренности.дополнительно оплачивается комиссия с покупателя.комиссия на покупку данного типа недвижимости при стоимости объекта недвижимости до 8 000 000 рублей составляет 20 000 рублей 2 от стоимости объекта недвижимости, но не менее 50 000 рублей при работе со специалистом по недвижимости при стоимости объекта недвижимости от 8 000 000 рублей составляет 2 от стоимости объекта недвижимости при работе со специалистом по недвижимости при стоимости объекта недвижимости до 8 000 000 рублей составляет 30 000 рублей 2 от стоимости объекта недвижимости, но не менее 50 000 рублей при работе с экспертом по недвижимости при стоимости объекта недвижимости от 8 000 000 рублей составляет 10 000 рублей 2 от стоимости объекта недвижимости при работе с экспертом по недвижимостисделки с агентствами по недвижимости происходят на основании соглашения о совместной сделке.код пользователя 12986номер в базе 10223984
Похожие однокомнатные квартиры в районе Октябрьский





